Proyecto emocional de arquitectura en Euskadi con foco en la memoria y el arraigo
07

Benta Zaharra

Ubicación: Gipuzkoa
Fotografía: Leire Rosales Corral
Año: 2024-
Colaboración: Iñaki Zalakain Sorrarain

PALABRAS DE OSCAR (el cliente):

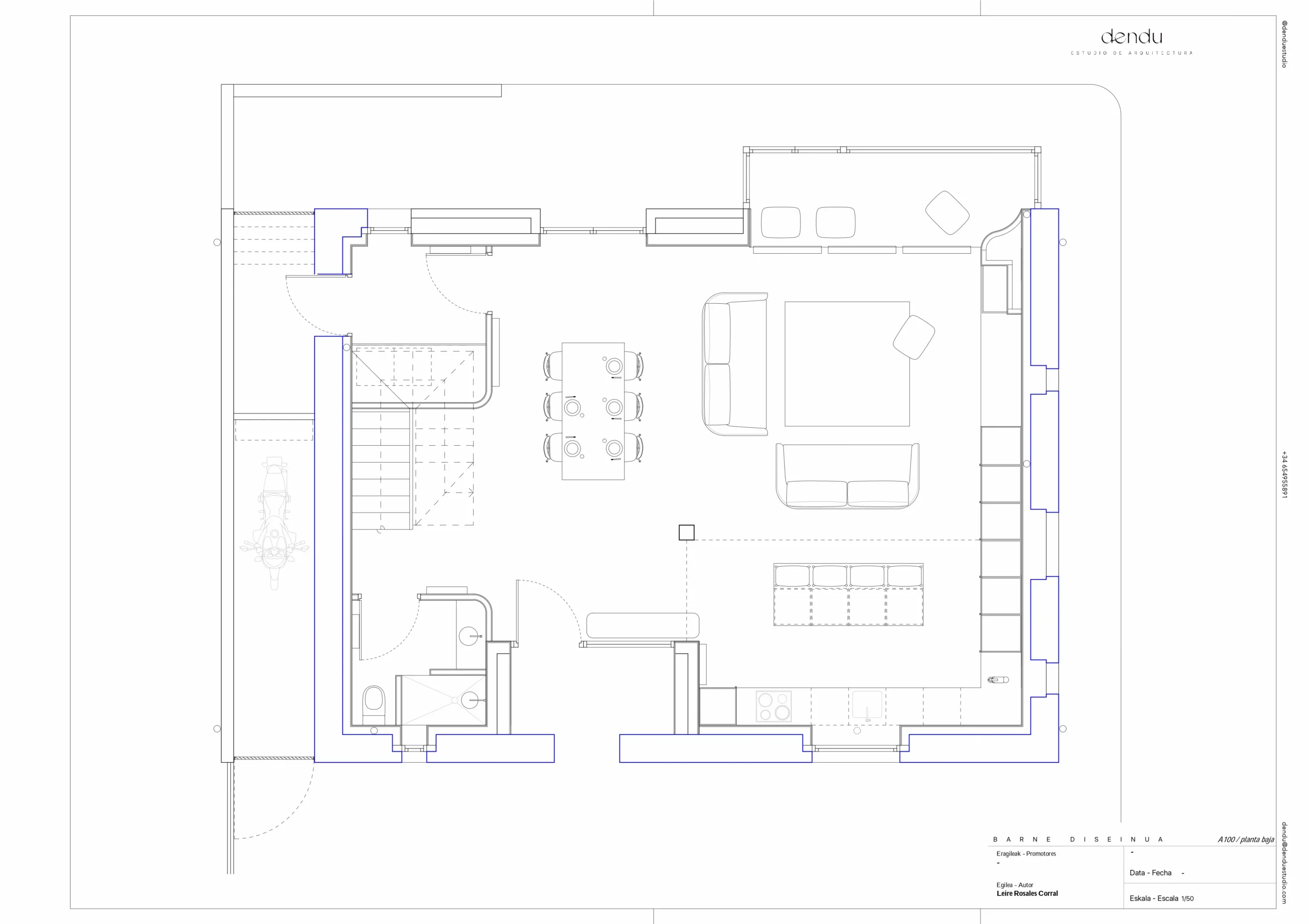
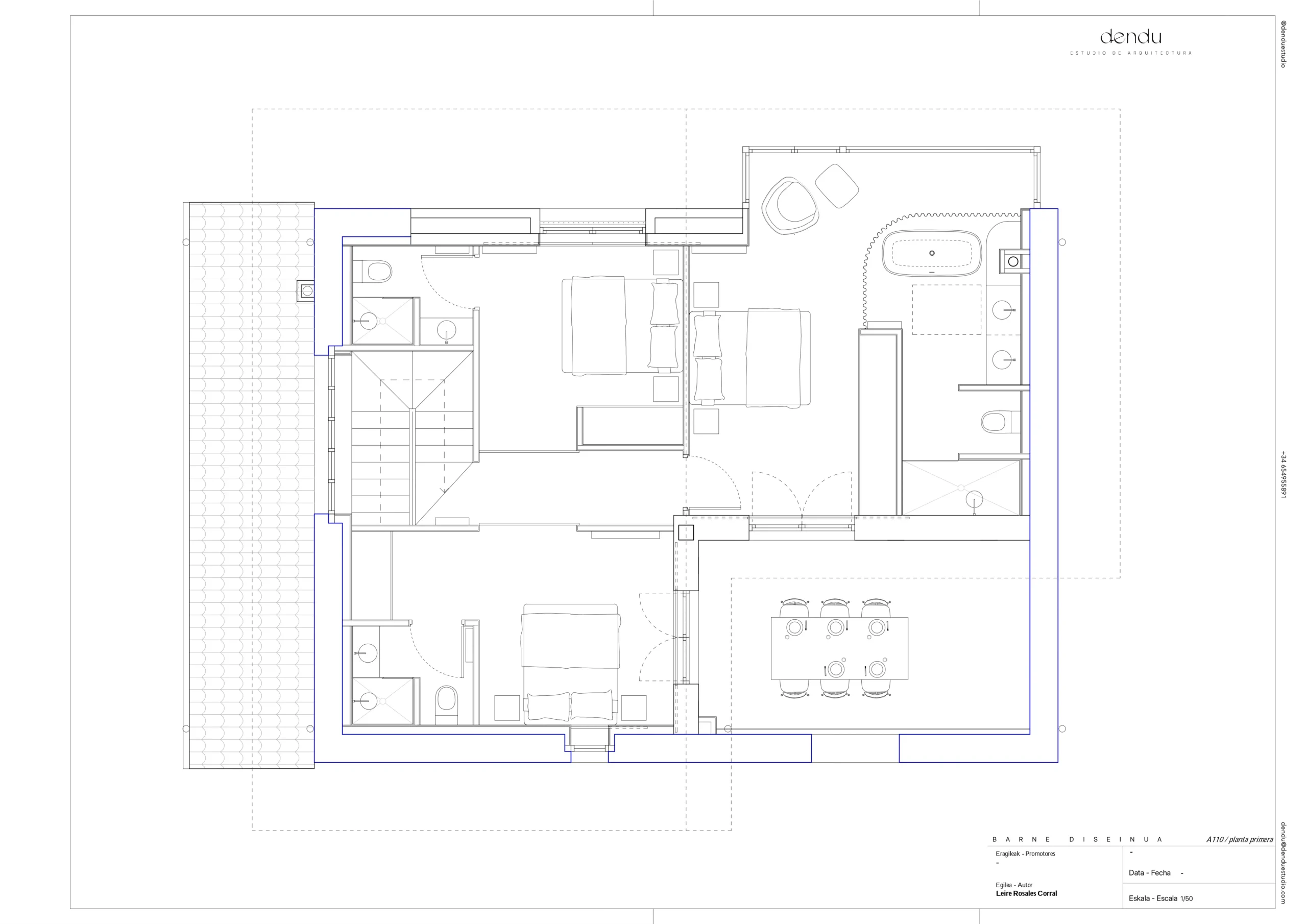
“Estoy rehabilitando un caserío en Guipúzcoa: una antigua venta con más de 400 años, de la que se mantenían en pie tres de sus cuatro muros de piedra. Desde el principio tuve clara una cosa: no tenía derecho a derribar esos muros. Quería conservar sus huellas e ‘imperfecciones’ como parte de la identidad del lugar. No fue fácil: casi todos me recomendaban tirarlo y empezar de cero. “Es más seguro, más rápido y más barato”… todos decían lo mismo!.

 

Entonces apareció Leire. Desde la primera conversación entendió la importancia de esa visión y la hizo suya. Se tomó el tiempo de estudiar el edificio, proponer soluciones sensatas y, sobre todo, respetuosas: consolidar sin borrar, reforzar sin disfrazar, sumar luz y confort sin silenciar la memoria del caserío.

 

El proceso con ella ha sido claro y cercano. Leire escuchó mis miedos —seguridad, aislamiento, normativas, plazos— y los fue ordenando con calma, criterio y pasión. Hoy, aunque la obra aún no ha terminado, siento que el caserío vuelve a respirar: conserva su alma, gana dignidad y se prepara para otros 400 años. Si alguien busca a una arquitecta capaz de cuidar un legado mientras lo trae al presente, recomendar a Leire, me sale natural.”

PALABRAS DE OSCAR (el cliente):

“Estoy rehabilitando un caserío en Guipúzcoa: una antigua venta con más de 400 años, de la que se mantenían en pie tres de sus cuatro muros de piedra. Desde el principio tuve clara una cosa: no tenía derecho a derribar esos muros. Quería conservar sus huellas e ‘imperfecciones’ como parte de la identidad del lugar. No fue fácil: casi todos me recomendaban tirarlo y empezar de cero. “Es más seguro, más rápido y más barato”… todos decían lo mismo!.

 

Entonces apareció Leire. Desde la primera conversación entendió la importancia de esa visión y la hizo suya. Se tomó el tiempo de estudiar el edificio, proponer soluciones sensatas y, sobre todo, respetuosas: consolidar sin borrar, reforzar sin disfrazar, sumar luz y confort sin silenciar la memoria del caserío.

 

El proceso con ella ha sido claro y cercano. Leire escuchó mis miedos —seguridad, aislamiento, normativas, plazos— y los fue ordenando con calma, criterio y pasión. Hoy, aunque la obra aún no ha terminado, siento que el caserío vuelve a respirar: conserva su alma, gana dignidad y se prepara para otros 400 años. Si alguien busca a una arquitecta capaz de cuidar un legado mientras lo trae al presente, recomendar a Leire, me sale natural.”

01
02
03
04
05
Proyecto emocional de arquitectura en Euskadi con foco en la memoria y el arraigo
06
07
08
09
10
11
12
13
14

Gracias por visitar dendu,

Si estás preparado para crear la casa que llamarás hogar durante años, nos encantará acompañarte.