Rehabilitación de caserío tradicional en Gipuzkoa con enfoque arquitectónico familiar
19

San Lorente

Ubicación: Gipuzkoa
Fotografía: Leire Rosales
Año: 2024
Colaboración: Iñaki Zalakain Sorrarain

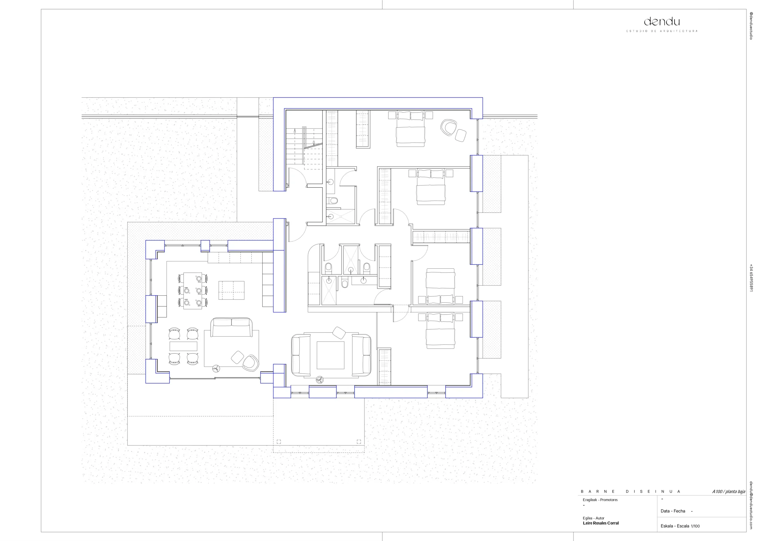
UN HOGAR PARA COMPARTIR

El caserío está en Zestoa, bajo la ermita de San Lorente. Nunca se vivió en él, pero siempre fue parte de la familia. Ahora, el proyecto busca convertirlo en un lugar de reencuentro.

La familia es grande, así que se han diseñado dos viviendas separadas pero iguales. Sin jerarquías. Funcionales, sencillas, con sentido. El acceso es único, sin escaleras exteriores. Los muros antiguos se respetan y se muestran. Lo que sostiene, se ve.

El diseño parte de entender el origen del caserío: identificar el volumen principal, limpiar los añadidos y unificar el conjunto. Como suele pasar, había muchos anexos, cada uno con su estética. Se ha respetado el edificio, pero se le ha dado coherencia.

El proyecto está parado. Las decisiones familiares llevan tiempo. Pero el diseño está hecho, y la intención sigue viva. Porque no se trata solo de rehabilitar un caserío. Se trata de recuperar un lugar que siempre estuvo ahí, esperando ser compartido.

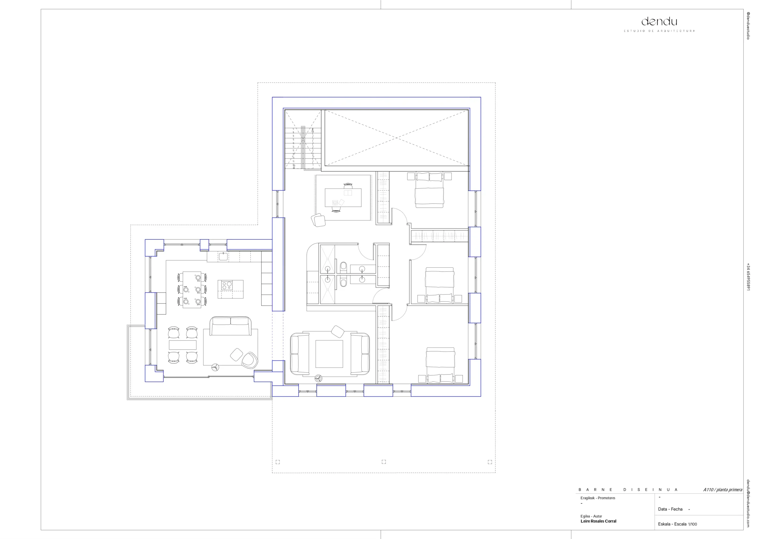
UN HOGAR PARA COMPARTIR

El caserío está en Zestoa, bajo la ermita de San Lorente. Nunca se vivió en él, pero siempre fue parte de la familia. Ahora, el proyecto busca convertirlo en un lugar de reencuentro.

La familia es grande, así que se han diseñado dos viviendas separadas pero iguales. Sin jerarquías. Funcionales, sencillas, con sentido. El acceso es único, sin escaleras exteriores. Los muros antiguos se respetan y se muestran. Lo que sostiene, se ve.

El diseño parte de entender el origen del caserío: identificar el volumen principal, limpiar los añadidos y unificar el conjunto. Como suele pasar, había muchos anexos, cada uno con su estética. Se ha respetado el edificio, pero se le ha dado coherencia.

El proyecto está parado. Las decisiones familiares llevan tiempo. Pero el diseño está hecho, y la intención sigue viva. Porque no se trata solo de rehabilitar un caserío. Se trata de recuperar un lugar que siempre estuvo ahí, esperando ser compartido.

01
02
03
04
05
06
07
Rehabilitación de caserío tradicional en Gipuzkoa con enfoque arquitectónico familiar
08
09
10
11

Gracias por visitar dendu,

Si estás preparado para crear la casa que llamarás hogar durante años, nos encantará acompañarte.